Kościelisko, Rysulówka

Mieszkanie na sprzedaż

Opis nieruchomości

Studio z widokiem na Giewont! Kościelisko

Powierzchnia: 39,5 m2
Cena: 690 000 PLN

LOKALIZACJA:


Kościelisko, 5 km od Zakopanego
Budynek położony w spokojnej części Kościeliska, z dobrą komunikacją publiczną i sklepami w pobliżu.

BUDYNEK:


Kameralny, trzypiętrowy budynek z miejscami parkingowymi na posesji. Wybudowany w 2013 roku.
1 miejsce parkingowe przypisane do mieszkania.

ROZKŁAD POMIESZCZEŃ:


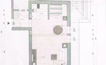
Mieszkanie 39,5 m2, znajduje się na drugim piętrze. Składa się z holu wejściowego, pokoju z wyposażonym aneksem kuchennym, częścią jadalnianą, aneksem sypialnym oraz łazienki z prysznicem. Dodatkową zaletą jest balkon z widokiem na góry oraz jedno miejsce parkingowe przypisane do mieszkania, przy budynku.

DODATKOWE INFORMACJE:


Miesięczny czynsz do wspólnoty 300 PLN.

Ogrzewanie: elektryczne - dynamiczne piece akumulacyjne Dimplex (zapewniają optymalny pobór energii elektrycznej).

Internet: światłowód

Status własności: własność z księgą wieczystą

Doskonała inwestycja pod wynajem krótkoterminowy lub na użytek własny.


​​​​​​​Jako biuro nieruchomości pobieramy za usługę pośrednictwa wynagrodzenie w formie prowizji.
 

Nota prawna

Jako Agencja Pośrednictwa w Obrocie Nieruchomościami pobieramy prowizję.
Niniejsze ogłoszenie jest wyłącznie informacją i nie stanowi oferty w rozumieniu art. 66 § 1 Kodeksu Cywilnego.

Szczegóły oferty

Symbol oferty BTP-MS-11176
Powierzchnia 39,50 m²
Powierzchnia użytkowa 39,50 m²
Liczba pokoi 1
Piętro 2
Rodzaj budynku apartamentowiec
Liczba pięter w budynku 3
Garaż miejsce parkingowe
Stan lokalu bardzo dobry
Stan prawny Własność
Mies. czynsz admin. 300 PLN
Balkon balkon
Rok budowy 2013
Ogrzewanie elektryczne

Pomieszczenia

Rodzaj kuchni aneks kuchenny
Liczba łazienek 1

Lokalizacja

Kalkulator kredytowy

PLN
%
Wysokość raty

Kalkulator kosztów

PLN
PLN
PLN
PLN
PLN
PLN
%
PLN
Podatek od czynności cywilno-prawnych
Taksa notarialna (opłata notarialna)
VAT od taksy notarialnej (opłaty notarialnej)
Wniosek do WKW
VAT od wniosku do WKW
Prowizja agencji nieruchomości
VAT od prowizji agencji nieruchomości
Wypisy aktu notarialnego - około
RAZEM (cena + opłaty)

Napisz do nas

Proszę wypełnić to pole
Proszę wypełnić to pole
Proszę wypełnić to pole
Proszę wypełnić to pole
Trwa wysyłanie...

Ta strona wykorzystuje pliki cookies w celach statystycznych oraz w celu dostosowania naszych serwisów do indywidualnych potrzeb klientów. Zmiany ustawień dotyczących plików cookie można dokonać w dowolnej chwili modyfikując ustawienia przeglądarki. Korzystanie z tej strony bez zmian ustawień dotyczących cookies oznacza, że będą one zapisane w pamięci urządzenia.

rozumiem